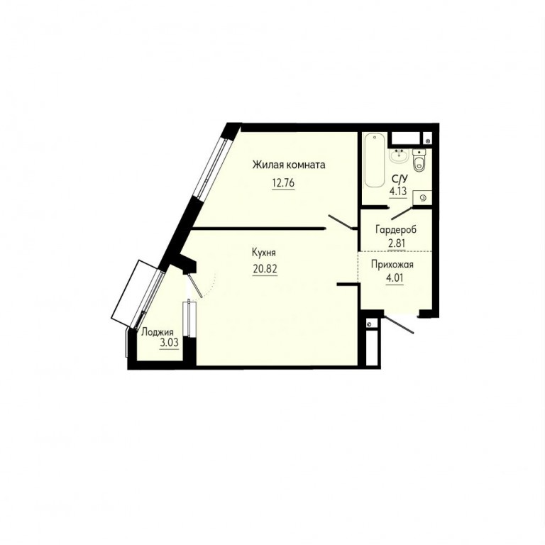
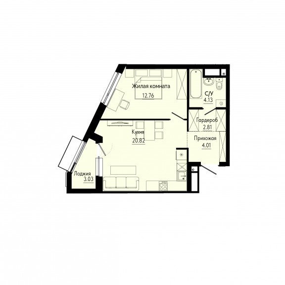
Однокомнатная квартира №242
Планировка квартиры
План этажа
Площадь
46,05 м2
Срок сдачи
4 квартал 2027 г.
Этаж/этажность
20/30
Отделка
Чистовая
9 951 131 ₽