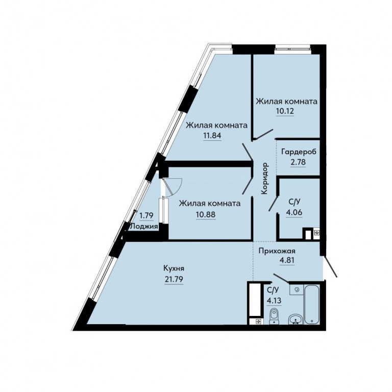
Трехкомнатная квартира №1
Планировка квартиры
План этажа
Площадь
75,54 м2
Срок сдачи
4 квартал 2027 г.
Этаж/этажность
2/30
Отделка
Чистовая
11 811 780 ₽